Skip to Content

FARMHOUSE

A Contemporary Retreat in Suwaiq

Client
Hajir Abdul Aziz Al Balushi

 Location
Al Rumais, Barka

 Plot Area
600 Sqm

Built-Up Area
480 Sqm

The Farmhouse project was envisioned as a spacious yet intimate family residence set within a large natural setting. The generous land area allows the built structure to breathe, creating a balanced relationship between architecture and landscape.

Outdoor elements such as the swimming pool and dedicated BBQ area extend the living experience beyond the walls of the house, transforming the property into a complete lifestyle destination rather than simply a residential building.

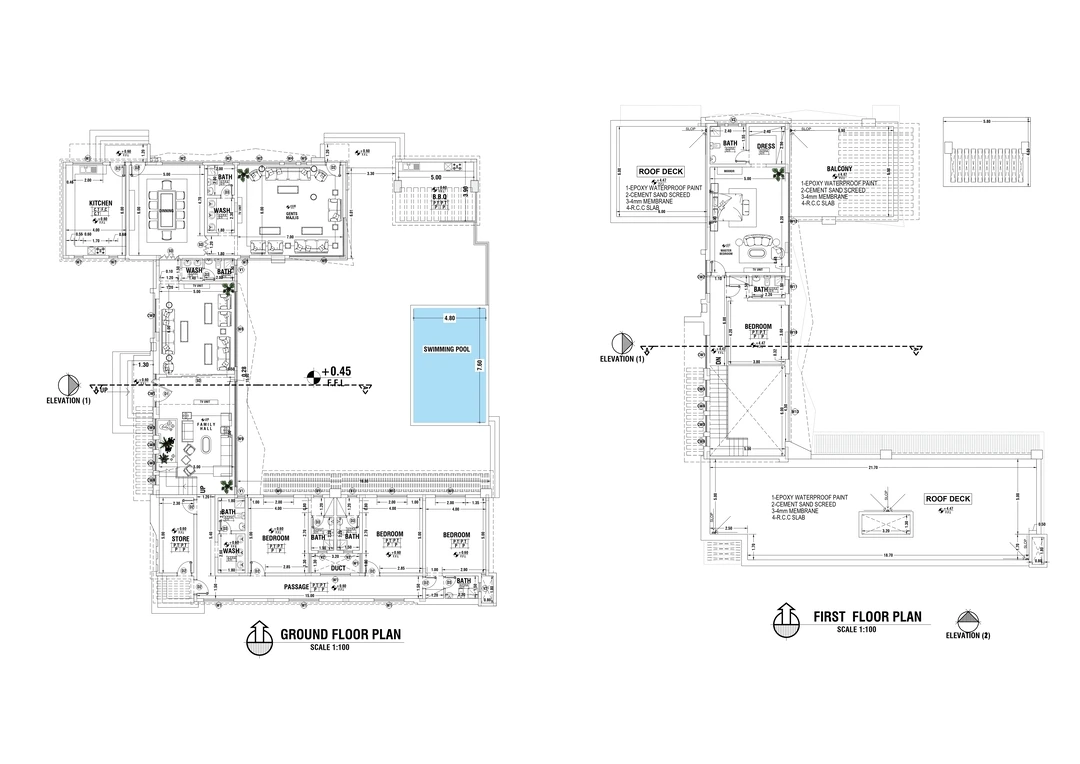
Ground Floor Layout

The ground floor is organized to accommodate hospitality, family living, and leisure activities. It includes:

  • 1 Majlis for welcoming guests

  • 1 Female Majlis with attached bathroom

  • 1 Double-Height Family Hall as the central living space

  • 2 Bedrooms

  • 1 Kitchen with efficient service access

  • 1 Separate Dining Hall

  • Outdoor BBQ Area and Swimming Pool

The double-height family hall serves as the architectural focal point, introducing vertical spaciousness and enhancing natural light distribution throughout the interior.

First Floor Layout

The upper level is designed as a more private family zone. It includes:

  • 1 Bedroom

  • 1 Master Bedroom with open balcony view

The master bedroom is positioned to overlook the surrounding landscape, offering a peaceful retreat connected to the outdoors.

The Majlis space reflects a welcoming atmosphere designed for formal gatherings, combining proportion and comfort. The Women Majlis with its dedicated bathroom ensures privacy and cultural consideration while maintaining aesthetic continuity with the rest of the home.

The Dining Room is arranged as a separate yet connected space, ideal for hosting extended family dinners. Meanwhile, the Family Hall with its double-height ceiling introduces architectural drama, allowing natural light to cascade into the heart of the home.

The Master Bedroom is designed as a private sanctuary, complemented by elegant detailing and access to an open balcony that enhances the sense of retreat. The Men Majlis bathroom is finished with refined materials, emphasizing functionality while maintaining design consistency.

Floor Plan


CLASSIC VILLA
A Timeless Residential Design in Al Rumais, Barka